Bifamiliare in vendita

Genova, Via Forte Monte Guano - Borzoli
€ 495.000
12 locali 12 locali
250 Mq 250 Mq
2 bagni 2 bagni

Bifamiliare in vendita

Genova, Via Forte Monte Guano - Borzoli

Descrizione annuncio

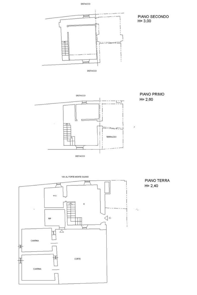
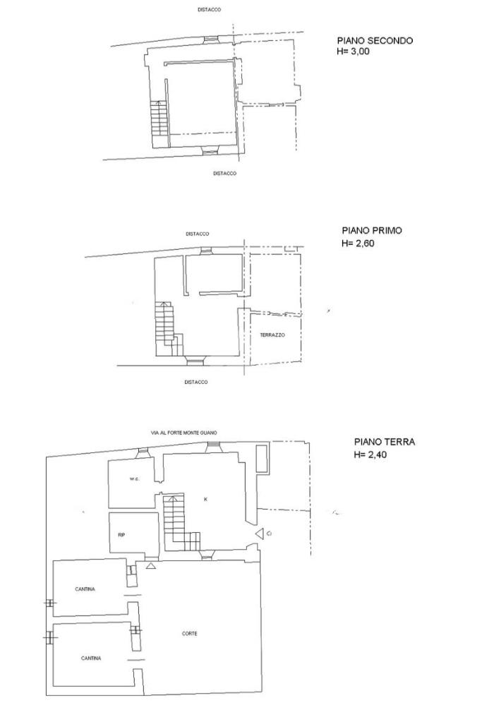
Nel cuore di Borzoli, a Genova, si propone in vendita una bifamiliare indipendente di 250 mq, distribuita su tre livelli.

Questa proprietà storica, risalente al 1600, è stata mantenuta in ottimo stato, offrendo un connubio perfetto tra fascino antico e comfort moderno. L'immobile si compone di due unità abitative distinte, entrambe disposte su più livelli.

La prima unità è così distribuita:

Piano terra: ampia cucina abitabile ed un bagno finestrato con box doccia.

Piano primo: soggiorno, una prima camera attualmente utilizzata come studio ed una camera matrimoniale, la quale gode di un bellissimo terrazzino che affaccia sulla corte e sul giardino.

Piano secondo: Camera padronale ed una cameretta singola.

Nella seconda unità al piano terra troviamo il soggiorno, il bagno finestrato con box doccia ed una zona lavanderia.

Piano Primo: cucina con annessa sala da pranzo e camera matrimoniale.

Il secondo piano offre una prima stanza d'ingresso ed una seconda sul lato ovest, attulamente tutto il sottotetto si presenta al grezzo e con travi a vista.

Alla prima unità sono annesse inoltre, due ampie cantine con accesso dal giardino.

All'esterno, uno splendido giardino con piscina ed un'ampia porzione di terreno pianeggiante rappresentano un'oasi di relax, perfetta per trascorrere momenti all'aria aperta. L'accesso carrabile facilita l'ingresso e l'uscita, rendendo la proprietà ancora più comoda.

Essendo dotata di aria condizionata, questa casa offre un ambiente confortevole in ogni stagione. Un'opportunità unica per chi desidera vivere in una residenza storica con tutti i comfort moderni.

Mostra tutto

Nelle vicinanze

Trasporto pubblico Trasporto pubblico
Brin
Brin
1,9 Km
Genova Borzoli
Genova Borzoli
650 m
stazione di Genova Rivarolo
stazione di Genova Rivarolo
1,3 Km
Venzano / Capolinea
Venzano / Capolinea
120 m
Borzoli 9 / Venzano
Borzoli 9 / Venzano
140 m
Ricariche auto elettriche Ricariche auto elettriche
EnelX Sant'Elia Genova
1,5 Km
EnelX Fast IKEA Genova
1,6 Km
Leroy Merlin Genova | EnelX
1,6 Km
Genova Chiaravagna | EnelX
1,7 Km
Europam - Campi - ZapGrid
1,7 Km
Scuole Scuole
Scuola dell'Infanzia Arcobaleno
260 m
Scuola Primaria 2 Giugno
270 m
Scuola Secondaria
280 m
Istituto Comprensivo di Borzoli
300 m
Scuola Edile Genovese
890 m
Farmacia Farmacia
San Martino
680 m
Farmacia San Rocco
1,4 Km
Parafarmacia Erboristeria Il Girasole
1,4 Km
Farmacia Certosa
1,5 Km
Farmacia Garbarini
1,5 Km
Ospedali Ospedali
Ospedale Padre Antero Micone
1,9 Km
Ospedale Villa Scassi
3,0 Km
Supermercati Supermercati
Il forno di Felice - Minimarket
170 m
Punto Simply
210 m
Di Più
390 m
Discount Eurospin
1,4 Km
In's mercato
1,4 Km
Negozi Negozi
Da u Tappe
630 m
Negozi
1,4 Km
Panificio focacceria Garibaldi
1,5 Km
Distribuzione Tessile
1,6 Km
Panificio Fratelli Corona
1,7 Km
Bar Bar
Bar
200 m
Bar Jolly
210 m
Baobab Bar
480 m
Bar Spritz Santacruz
680 m
Bar Ciacci
1,4 Km
Ristoranti Ristoranti
Bar Trattoria Glicine
400 m
PizzArt
680 m
Trattoria La Baracchetta
700 m
Mattelin
990 m
Clover Bar
1,0 Km
Mostra tutto

Caratteristiche

Rif.:
61139724
Piano:
3 di 3 (Piano su più livelli)
Posti auto:
2
Terrazzi:
1
Camere da letto:
7
Arredamento:
Parziale
Mostra tutto
Prezzo Prezzo
€ 495.000
Rata mutuo Rata mutuo
€ 2.340 / mese
Spese annue Spese annue
€ 0
Proponi il tuo prezzoProponi il tuo prezzo
Immobile valutato con T·Valuta

Classe Energetica

F
F
F
F
F
F
F
F
F
EP invernale del fabbricato:
EP estiva del fabbricato:
Anno di costruzione:
1600
Riscaldamento:
Autonomo
Tipo impianto:
A radiatori
Tipo alimentazione:
Metano

Ti interessa visionare l'immobile?

Fissa un appuntamento  Fissa un appuntamento

Richiedi informazioni

Clicca su Leggi per aprire l'informativa
* Questi campi sono obbligatori

Calcola il tuo mutuo

Semplice e senza impegno
Anticipo

( % )
Mutuo

( % )

pochi semplici passi

inserisci i tuoi dati
Questionario completato
Grazie per aver richiesto un appuntamento senza impegno con un nostro Consulente del Credito e Assicurativo.

Hai inserito correttamente tutti i dati necessari e a breve riceverai una e-mail con un link da convalidare per inviare i tuoi dati.
Affiliato
Gml Studio Borzoli Snc
Via Borzoli , 32-34 R 16121 Genova (GE)
Via Borzoli , 32-34 R 16121 Genova (GE)
Zona: Genova Borzoli
Mostra su mappa
Affiliato
Gml Studio Borzoli Snc
Via Borzoli , 32-34 R 16121 Genova (GE)

2026 Tecnocasa Franchising S.p.A. - P. IVA 08365160152 - Via Monte Bianco 60/A 20089 Rozzano (MI). Ogni agenzia ha un proprio titolare ed è autonoma. Privacy policy | Policy utilizzo | Cookie policy